产品特色:
1.多种通讯:RS485,zigBee,wifi
2.避雷失效(独有)和损坏检测
3.性价比高
4.工作电源可直接从电池板上取电压(100-1000V)
5.适用性高(安装、体积、功能全面、不需要额外电源供电)
6.产品性能等于,大于同类产品
产品特点:
·测量元件采用霍尔传感器,隔离测量 ·可接受正极或负极汇流测量方式 ·板载光伏专用熔断器,耐压DC1kV,熔断电流可选择 ·可选电压功能,最高测量电压DC1kV ·提供外部传感器输入接口 ·多种供电方式可选择
产品功能:
·光伏电池串开路报警,状态检测
·带开关量输入,用于采集直流断路器、防雷器等元件的动作状态
·带继电器输出,可以设定为点动方式,用于驱动直流断路器的自动分合闸
·提供温度、辐照、风速等类型传感器输入接口
·可输出DC24V电源给外部传感器供电
·就地数码管循环显示每通道的输入电流,并具有自动关闭节能显示模式
·可带双路冗余RS485接口,支持Modbus RTU通讯协议,通讯地址、波特率、数据方式都可自由设定
技术参数:
接线方式:

负极汇流板接线:

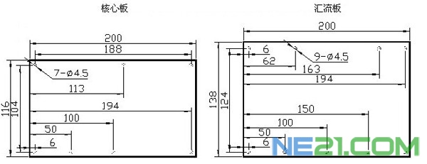
产品外观: 
圣斯尔光伏汇流采集装置是专门应用于智能光伏汇流箱,用于监测光伏电池阵列中电池板运行状态,光伏电池电流测量,汇流箱中防雷器状态采集、直流断路器状态采集、继电器接点输出,带有风速、温度、辐照仪等传感器接口,装置带有RS485接口可以把测量和采集到的数据和设备状态上传。
索比光伏网 https://news.solarbe.com/201106/03/17775.html

